Łódź, Śródmieście, ks. Ignacego Skorupki

Mieszkanie na sprzedaż

Opis nieruchomości

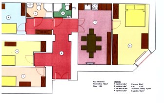
Na sprzedaż przestrzenne 4 - pokojowe mieszkanie o powierzchni 74 m2 usytuowane na pierwszym piętrze kamienicy przy ul. Skorupki w Łodzi. 

W skład powierzchni użytkowej mieszkania wchodzą:
- kuchnia z jadalnią o powierzchni ok. 16 m2,
- pokój/sypialnia 1 o powierzchni ok. 17 m2,
- pokój/sypialnia 2 o powierzchni ok. 9 m2,
- pokój/sypialnia 3 o powierzchni ok. 8 m2,
- pokój/sypialnia 4 o powierzchni ok. 8 m2
- łazienka z prysznicem i WC o powierzchni ok. 3 m2,
- WC o powierzchni ok. 2 m2,
- korytarz ok. 15 m 2.
Ponadto do mieszkania przynależy piwnica o powierzchni ok. 20 m2. Woda i ogrzewanie miejskie. W mieszkaniu został przeprowadzony remont ok. 5 lat temu - w tym wymiana instalacji elektrycznej, sufit podwieszany wraz z ociepleniem wełną mineralną, podłoga wypoziomowana i pokryta płytami OSB, okna plastikowe. Mieszkanie posiada balkon od strony ul. Skorupki z pięknym widokiem na Katedrę.

Istnieje możliwość przearanżowania przestrzeni mieszkalnej poprzez usunięcie niektórych ścianek działowych i tym samym powiększenie istniejących pokoi. Ze względu na swoją lokalizację mieszkanie doskonale sprawdzi się zarówno z przeznaczeniem pod inwestycję np. na najem pokoi, jak i na przestrzeń mieszkalną dla rodziny.

ZAPRASZAM NA PREZENTACJĘ!

Nota prawna

Opis oferty zawarty na stronie internetowej sporządzany jest na podstawie oględzin nieruchomości oraz informacji uzyskanych od właściciela, może podlegać aktualizacji i nie stanowi oferty określonej w art. 66 i następnych K.C.

Szczegóły oferty

Symbol oferty TOPH-MS-36
Powierzchnia 74,00 m²
Liczba pokoi 4
Piętro 1
Rodzaj budynku kamienica
Technologia budowlana cegła
Standard
Opłaty w czynszu administracja, Części wspólne, fundusz remontowy, ogrzewanie, woda/ryczałt na wodę, wywóz śmieci
Opłaty wg liczników CO, prąd, Woda ciepła, Woda zimna
Liczba pięter w budynku 3
Garaż brak
Piwnica 20,00 m²
Stan lokalu dobry
Stan prawny Odrębna własność lokalu
Mies. czynsz admin. 1 400 PLN
Okna PCV
Instalacje wymienione
Balkon mały
Liczba balkonów 1
Rok budowy 1900
Widok park/skwer
Woda tak - miejska
Dojazd asfaltowa/kostka
Otoczenie park
Ogrzewanie C.O. miejskie
Usytuowanie dwustronne

Pomieszczenia

Podłogi pokoi panele
Rodzaj kuchni otwarta połączona z jadalnią
Podłoga kuchni terakota
Typ łazienki razem z wc
Liczba łazienek 2
Glazura łazienki glazura
Podłoga łazienki terakota
Wyposażenie łazienki prysznic, WC

Kalkulator kredytowy

PLN
%
Wysokość raty

Kalkulator kosztów

PLN
PLN
PLN
PLN
PLN
PLN
%
PLN
Podatek od czynności cywilno-prawnych
Taksa notarialna (opłata notarialna)
VAT od taksy notarialnej (opłaty notarialnej)
Wniosek do WKW
VAT od wniosku do WKW
Prowizja agencji nieruchomości
VAT od prowizji agencji nieruchomości
Wypisy aktu notarialnego - około
RAZEM (cena + opłaty)

Uwaga: mogą wystąpić dodatkowe opłaty za założenie księgi wieczystej oraz ustanowienie hipoteki.

Podobne oferty

mieszkanie na sprzedaż - Łódź, Polesie, Lublinek, Pienista

mieszkanie na sprzedaż

Łódź, Polesie, Lublinek, Pienista
3 pokoje 58,80 m2 8 928,57 zł/m2
mieszkanie na sprzedaż - Łódź

mieszkanie na sprzedaż

Łódź
3 pokoje 82,07 m2 5 787,74 zł/m2
mieszkanie na sprzedaż - Łódź, Śródmieście, Teatr Wielki

mieszkanie na sprzedaż

Łódź, Śródmieście, Teatr Wielki
2 pokoje 41,22 m2 13 000,00 zł/m2
mieszkanie na sprzedaż - Łódź, Śródmieście, Manhattan, Sienkiewicza

mieszkanie na sprzedaż

Łódź, Śródmieście, Manhattan, Sienkiewicza
3 pokoje 66,00 m2 6 969,70 zł/m2

Napisz do nas

Proszę wypełnić to pole
Proszę wypełnić to pole
Proszę wypełnić to pole
Proszę wypełnić to pole
Trwa wysyłanie...

Ta strona wykorzystuje pliki cookies w celach statystycznych oraz w celu dostosowania naszych serwisów do indywidualnych potrzeb klientów. Zmiany ustawień dotyczących plików cookie można dokonać w dowolnej chwili modyfikując ustawienia przeglądarki. Korzystanie z tej strony bez zmian ustawień dotyczących cookies oznacza, że będą one zapisane w pamięci urządzenia.

rozumiem