Dmosin, Nowostawy Dolne

Działka na sprzedaż

Opis nieruchomości

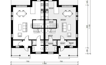
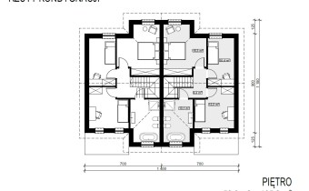
Działka budowlana - Nowostawy Dolne koło Strykowa - powierzchnia 8724 m2 (ze wstępnym projektem zagospodarowania terenu 5 domami typu bliźniak)

Zapraszamy do zapoznania się z ofertą sprzedaży działki znajdującej się w Nowostawach Dolnych - około 5 kilometrów od Strykowa.
Działka o powierzchni 8724 mznajduje się w malowniczej okolicy bezpośrednio nad rzeką Mrożycą.
Nieruchomość kształtem przypomina prostokąt o długości około 150 metrów i szerokości 60 metrów,  jedynie od strony rzeki posiada nieregularny kształt. 
Teren działki jest niezagospodarowany i porośnięty drzewami co powoduję, że działka nabiera leśnego klimatu. Duża ilość otaczającej zieleni sprawia, że nieruchomość stanowi doskonałe miejsce do odpoczynku i relaksu. Nieruchomości jest w całości ogrodzona.
Teren nieruchomość objęty jest Miejscowym Planem Zagospodarowania Przestrzennego Gminy Dmosin o symbolu 14MN.
Zgodnie z uchwałą na terenach oznaczonych symbolem 14 MN ustala się możliwość lokalizacji zabudowy jednorodzinnej, budynków garażowych i gospodarczych, wiat, altan, urządzeń budowlanych, dróg wewnętrznych, urządzeń infrastruktury technicznej. Ponadto ustala szczegółowe zasady kształtowana zabudowy oraz wskaźniki zagospodarowania terenu:
* minimalna powierzchnia biologicznie czynna – 60%;
* maksymalna powierzchnia zabudowy – 30%;
* intensywność zabudowy – od 0,1 do 0,4;
* maksymalna wysokość zabudowy – 10 m;
* dopuszcza się realizację kondygnacji podziemnych i piwnic;
* minimalna powierzchnia nowo wydzielanych działek budowlanych – 1000 m2

Nieruchomość stanowi bardzo ciekawą propozycję dla dewelopera. Projekt zagospodarowania terenu przewiduję część budowlaną znajdującą się od strony drogi asfaltowej o powierzchni około 5000 m2, na której wstępny projekt zakłada możliwość wybudowania 5 domów typu bliźniak. Usytuowanie projektowanych budynków umożliwia maksymalne wykorzystanie dostępnej powierzchni przy jednoczesnym zagwarantowaniu niezależności i komfortu dla mieszkańców. Według projektu budynki zasilane byłby wodą ze studni głębinowej, natomiast ogrzewane, ze względu na sprzyjające temu warunki, za pomocą  głębinowej pompą ciepły.
Zapraszamy do kontaktu i prezentacji nieruchomości!
 
Służymy również pomocą w otrzymaniu kredytu na zakup tej nieruchomości!













 

Nota prawna

Opis oferty zawarty na stronie internetowej sporządzany jest na podstawie oględzin nieruchomości oraz informacji uzyskanych od właściciela, może podlegać aktualizacji i nie stanowi oferty określonej w art. 66 i następnych K.C.

Szczegóły oferty

Symbol oferty MACH-GS-261
Powierzchnia 8 713,00 m²
Przeznaczenie działki budowlana, inwestycyjna, mieszkaniowa
Wymiary działki 61 x 147 x 55 x 147 m
Zagosp. działki niezagospodarowana
Ukształtowanie działki płaska
Kształt działki nieregularny
Ogrodzenie działki ogrodzona
Gaz brak
Woda brak
Dojazd asfalt
Otoczenie działki niezabudowane
Odl. do szkoły [m] 2 500 m
Odl. do przedszkola [m] 2 500 m
Prąd w trakcie prowadzenia
Kanalizacja brak

Lokalizacja

Kalkulator kredytowy

PLN
%
Wysokość raty

Kalkulator kosztów

PLN
PLN
PLN
PLN
PLN
PLN
%
PLN
Podatek od czynności cywilno-prawnych
Taksa notarialna (opłata notarialna)
VAT od taksy notarialnej (opłaty notarialnej)
Wniosek do WKW
VAT od wniosku do WKW
Prowizja agencji nieruchomości
VAT od prowizji agencji nieruchomości
Wypisy aktu notarialnego - około
RAZEM (cena + opłaty)

Uwaga: mogą wystąpić dodatkowe opłaty za założenie księgi wieczystej oraz ustanowienie hipoteki.

Napisz do nas

Proszę wypełnić to pole
Proszę wypełnić to pole
Proszę wypełnić to pole
Proszę wypełnić to pole
Trwa wysyłanie...

Ta strona wykorzystuje pliki cookies w celach statystycznych oraz w celu dostosowania naszych serwisów do indywidualnych potrzeb klientów. Zmiany ustawień dotyczących plików cookie można dokonać w dowolnej chwili modyfikując ustawienia przeglądarki. Korzystanie z tej strony bez zmian ustawień dotyczących cookies oznacza, że będą one zapisane w pamięci urządzenia.

rozumiem