Zduńska Wola (gw), Andrzejów

Dom na sprzedaż

Opis nieruchomości

Nieruchomość do wykończenia. Dom w stanie surowym otwartym.
 
Oferujemy na sprzedaż dom wolnostojący o powierzchni użytkowej 116 m2 usytuowany na dużej działce 2990m2.
 
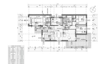
Dom parterowy z płaskim dachem, składa się z:
 
-wiatrołap - 3,75m2,
- korytarz - 5,20m2,
- komunikacja - 10,97m2
- salon - 30,26m2,
- pokój - 11,75m2
- pokój - 11,75m2
- pokój - 10,66m2
- kuchnia i jadalnia - 11,98m2,
- łazienka - 7,21m2,
- wc - 1,80m2
- garderoba - 2,42m2
- pom. tech. - 3,25m2
- spiżarnia - 1,90m2
- garaż - 21,30m2
 
 
Teren nieogrodzony, miejsce bardzo intymne, schowane na uboczu. Latem osłonięte zbożami po sąsiedzku, tył działki porośnięty samosiejkami, od frontu przy drodze dojazdowej las.
 
Budynek wymaga dokończenia budowy, wstawienia okien, ocieplenia, otynkowania, rozprowadzenia instalacji. Strop lany wymaga ocieplenia.
Ogrzewanie wg uznania, projekt zakładał pompę ciepła.
 
Działka w kształcie prostokąta - szerokość od frontu wynosi ok 18m. Media - prąd na działce, studnia głębinowa, oczyszczalnia ekologiczna do wykonania, posiadamy projekt.
 
Garaż jednostanowiskowy w bryle budynku.
 
Atutem nieruchomości jest przede wszystkim jego położenie, spokojna okolica w sąsiedztwie lasów i kilku nowych domów. Kilka minut zajmuje dojazd samochodem do miasta.
Miejsce idealne dla rodziny do odpoczynku w intymnych warunkach.
 
Nieruchomość wymaga nakładów finansowych. Podana cena dotyczy stanu obecnego, do uzgodnienia.

Nota prawna

Opis oferty zawarty na stronie internetowej sporządzany jest na podstawie oględzin nieruchomości oraz informacji uzyskanych od właściciela, może podlegać aktualizacji i nie stanowi oferty określonej w art. 66 i następnych K.C.

Szczegóły oferty

Symbol oferty CNT-DS-1322
Powierzchnia 136,52 m²
Powierzchnia użytkowa 116,00 m²
Powierzchnia działki 2 990 m²
Liczba pokoi 4
Rodzaj domu wolnostojący
Technologia budowlana bloczki
Garaż w bryle
Stan prawny Własność
Instalacje brak
Balkon brak
Zagosp. działki niezagospodarowana
Ukształtowanie działki płaska
Kształt działki prostokąt
Stan budynku do wykończenia
Ogrodzenie działki brak
Rok budowy 2019
Gaz brak
Woda w ulicy
Dojazd droga gruntowa
Otoczenie las
Tarasy taras duży
Prąd jest
Kanalizacja brak

Pomieszczenia

Rodzaj kuchni aneks kuchenny - połączony z salonem

Kalkulator kredytowy

PLN
%
Wysokość raty

Kalkulator kosztów

PLN
PLN
PLN
PLN
PLN
PLN
%
PLN
Podatek od czynności cywilno-prawnych
Taksa notarialna (opłata notarialna)
VAT od taksy notarialnej (opłaty notarialnej)
Wniosek do WKW
VAT od wniosku do WKW
Prowizja agencji nieruchomości
VAT od prowizji agencji nieruchomości
Wypisy aktu notarialnego - około
RAZEM (cena + opłaty)

Uwaga: mogą wystąpić dodatkowe opłaty za założenie księgi wieczystej oraz ustanowienie hipoteki.

Podobne oferty

dom na sprzedaż - Zduńska Wola (gw)

dom na sprzedaż

Zduńska Wola (gw)
3 pokoje 90,00 m2 3 322,22 zł/m2

Napisz do nas

Proszę wypełnić to pole
Proszę wypełnić to pole
Proszę wypełnić to pole
Proszę wypełnić to pole
Trwa wysyłanie...

Ta strona wykorzystuje pliki cookies w celach statystycznych oraz w celu dostosowania naszych serwisów do indywidualnych potrzeb klientów. Zmiany ustawień dotyczących plików cookie można dokonać w dowolnej chwili modyfikując ustawienia przeglądarki. Korzystanie z tej strony bez zmian ustawień dotyczących cookies oznacza, że będą one zapisane w pamięci urządzenia.

rozumiem