Do wynajęcia komfortowe, w pełni wykończone i umeblowane mieszkanie o powierzchni 50 m², zlokalizowane w nowym bloku na osiedlu "Zielona Dolina" w Strykowie.
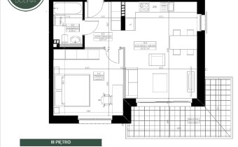
Układ pomieszczeń:
Dodatkowe udogodnienia:
✔ Mieszkanie wykończone i urządzane: gotowe do zamieszkania od zaraz — bez konieczności dodatkowych kosztów na wyposażenie.
✔ Komórka lokatorska na piętrze — dodatkowa przestrzeń do przechowywania rzeczy, rowerów czy sezonowych przedmiotów.
✔ Miejsce parkingowe — zapewnione na terenie osiedla.
✔ Osiedle ogrodzone — bezpieczeństwo oraz prywatność mieszkańców.
✔ Nowoczesne budownictwo z dbałością o funkcjonalność i komfort życia.
Zapraszam do kontaktu w celu uzyskania szczegółowych informacji oraz umówienia prezentacji mieszkania.



